Exhibition|
Experiential|
Retail|
Film
Saxon.Design
Experiential Environments
Exhibition|
Experiential|
Retail|
Film

Bristol M Shed 2014

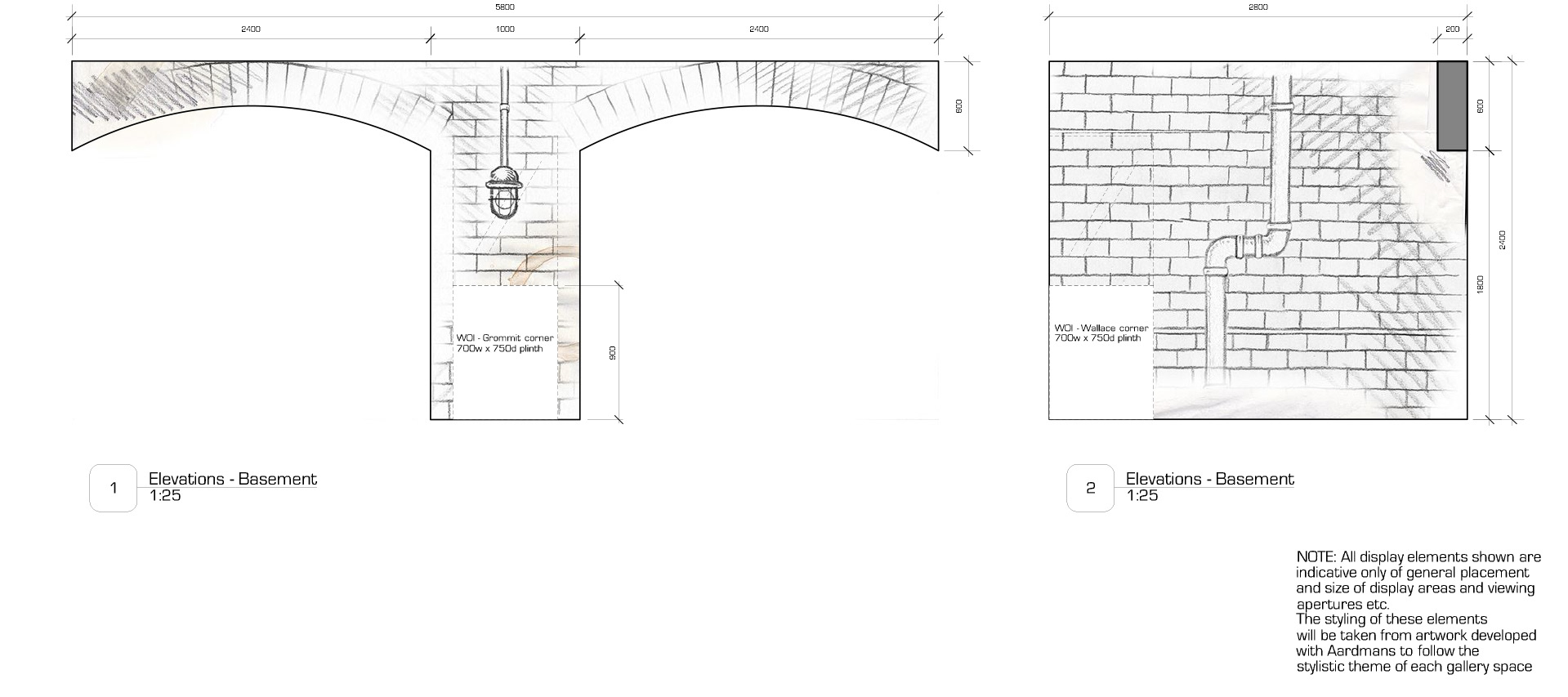
Wallace & Grommit at Home - Temporary exhibition. An interactive journey through Wallace and Grommits' home.

Back to Gallery